TELÉFONO OFICINA:

33-33-48-08-42




TELÉFONO OFICINA:

33-33-48-08-42


Renta de bodegas en complejo privado

Fernández, Tijuana, Baja California

  • $25,892.80 USD En Renta
  • $25,892.80 USD En Renta
  • 2,589.28 m² de construcción
Ver Tour Virtual

Detalles

  • Tipo: Bodega industrial
  • ID: EB-VG3811
  • Mantenimiento: 2589.28

Descripción

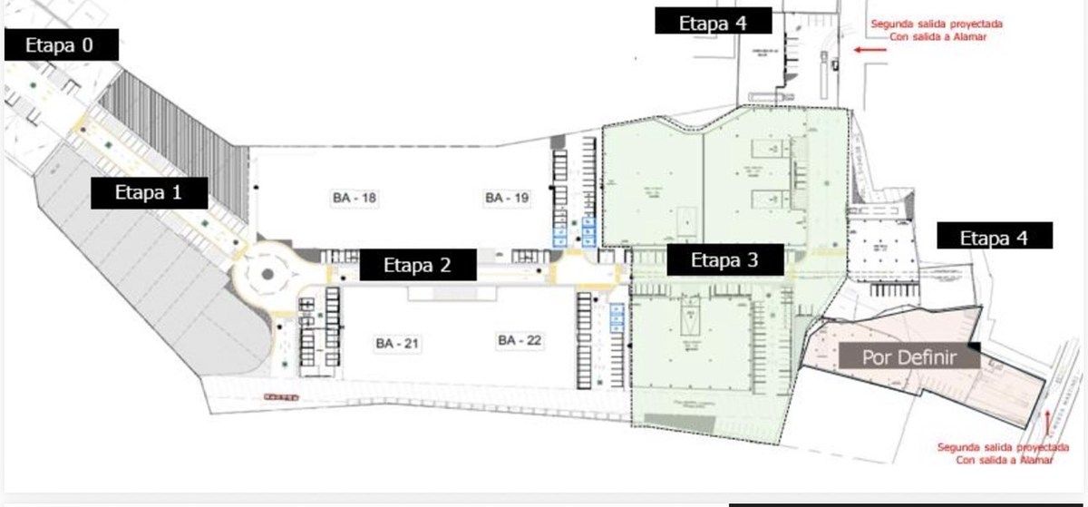
Bodegas comerciales para giros de
almacenamiento y logística dentro un parque con
más de 30 bodegas comerciales.

Ubicadas en la zona de Alamar en la
ciudad de Tijuana a 10 minutos de la
garita de San Ysidro.

Las bodegas cuentan con una altura
libre de 9 metros mínima inferior y 10
máxima para almacenamiento, anden
de 4m de piso, interior en obra gris,
preparaciones sanitarias y eléctricas,
cajones de estacionamiento asignados
y opción de renta de cajones
exclusivos a la necesidad del cliente.

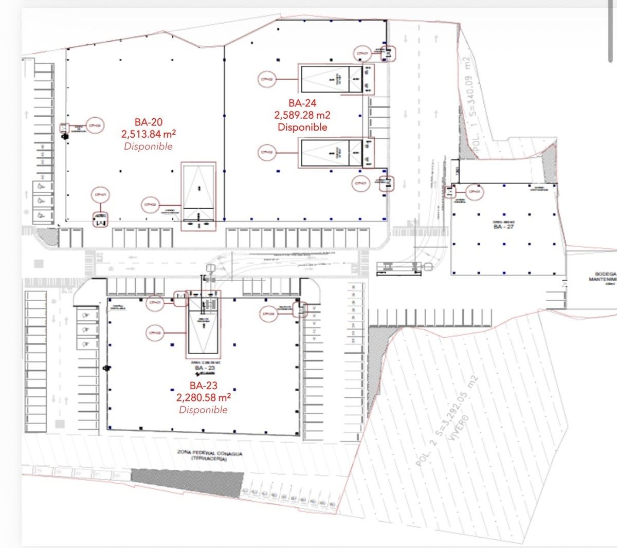
Disponibilidad:
BA-20
2513.14m2

BA-24
2589.28m2

BA-23
2280.58m2

Características generales:

2 Andenes de descarga por bodega

Cortina de acceso a pie de bodega

Altura libre: 10.00 m ( altura máxima 13.67 m)

Piso de concreto de alta resistencia (13 cm)

Instalación eléctrica transformador de 75 KVA’s

Sistema de voz y datos

Sistema contra incendios

Amenidades del parque:

CCTV, iluminación LED, patio de maniobras, estacionamiento delimitado, áreas verdes y barda perimetral

Amenidades

  • Cisterna
  • Accesibilidad para personas con discapacidad
  • Alarma
  • Bodega
  • Fraccionamiento privado
  • Seguridad 24 horas
LOTO

LOTO

EB-VG3811
Imprimir propiedad

Ubicación

Fernández, Tijuana, Baja California

Propiedades destacadas