TELÉFONO OFICINA:

33-33-48-08-42




TELÉFONO OFICINA:

33-33-48-08-42


RENTA DE BODEGA EN PARQUE INDUSTRIAL EN RAMOS ARIZPE COAHUILA

Parque Industrial, Ramos Arizpe, Coahuila

  • US$ 7.20 por m² En Renta
  • US$ 7.20 por m² En Renta
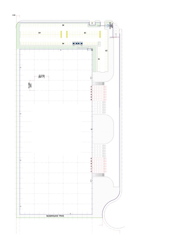
  • 26,160 m² de construcción
  • 43,619 m² de terreno
  • 213 Estacionamientos
Ver Tour Virtual

Detalles

  • Tipo: Bodega industrial
  • ID: EB-UI7492
  • Antigüedad: 2025
  • Pisos: 1

Descripción

Renta de nave industrial parque en industrial en Ramos Arizpe Coahuila

Precio de renta de $7.20 USD. por m2 de renta.

Mas los impuestos correspondientes mas la cuota de mtto.

FICHA TÉCNICA :

Características del Inmueble
Nave Industrial –
Superficies
Área de terreno: - 43,619 m²
Área construida: 26,160 m²
Área de expansión edificio: 11,416 m²
Área de expansión terreno: 16,387 m²

Estacionamiento: 213 espacios
Andenes: 12 + 10
Rampas: 2 rampas de concreto
Tamaño de bahía: 15.24 m x 21.21 m
- 50’ x 69’ - 7”
Altura libre: 9.75 m - 32’ Iluminación natural
- 4% aproximadamente (tragaluces)

Estructura del edificio
- Marco rígido de acero
Material de muros
- Concreto precolado
Material de techo
- Lámina engargolada (Standing Seam Roof)
Espesor del piso
- 15 cm / 6 pulgadas
- Adaptable según necesidades del cliente
Subestación eléctrica
- Incluida

Amenidades

  • Andén
  • Seguridad 24 horas
  • Facilidad para estacionarse
  • Muelle de carga
  • Patio
LOTO

LOTO

EB-UI7492
Imprimir propiedad

Ubicación

Parque Industrial, Ramos Arizpe, Coahuila

Propiedades destacadas