TELÉFONO OFICINA:

33-33-48-08-42




TELÉFONO OFICINA:

33-33-48-08-42


DEPARTAMENTO NUEVO CON ROOF GARDEN PRIV EN SANTA MA NONOALCO

Santa Maria Nonoalco, Benito Juárez, Ciudad de México

  • $9,430,250 En Venta
  • $9,430,250 En Venta
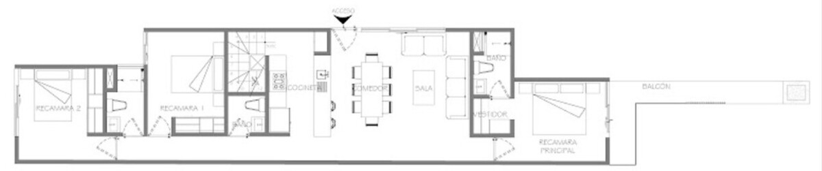
  • 3 Recámaras
  • 2 Baños
  • 1 Medios baños
  • 216 m² de construcción
  • 2 Estacionamientos
Ver Tour Virtual

Detalles

  • Tipo: Departamento
  • ID: EB-UL7284
  • Recámaras: 3 recámaras
  • Baños: 2
  • Medios baños: 1

Descripción

Conoce este increíble desarrollo en preventa.
Ubicado en una de las colonias mejor ubicadas en la Ciudad de México. Cerca de una variedad de cafés y restaurantes así como un ambiente tranquilo que puedes disfrutar junto con toda tu familia.
Enamórate de su diseño modernista, en perfecto equilibrio entre un aspecto urbano y toques de naturaleza. Características de encanto, acabados de lujo y amenidades como: salón de usos múltiples, gimnasio y terraza.
Conoce las características y la variedad de opciones que *tiene para ti. Agenda una cita con nosotros para conocer este hermoso desarrollo.
Amenidades
Gimnasio y Salón de Eventos

INTERIOR
Habitable 114 m2
Balcón 8.80 M2
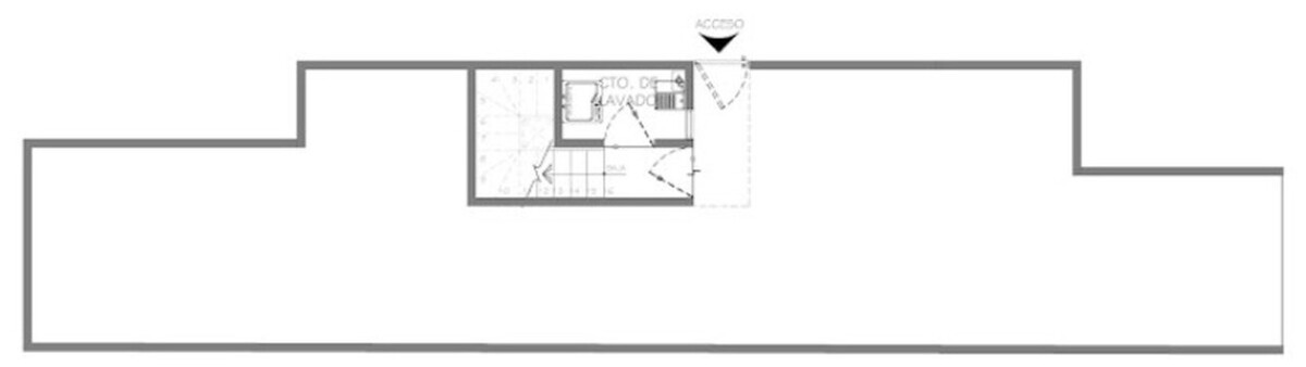
Roof Garden Privado 93.45 M2

Si te interesa conocerlo, llámanos! con gusto te atenderemos.
* INMOBILIARIA se especializa en ofrecer ahorro de tiempo para comprar, vender o rentar de forma segura y optima ofreciendo claridad en el proceso.

- Precios y disponibilidad pueden variar sin previo aviso.
- Diseño final puede variar
- No incluye mobiliario mostrado en imágenes. Son meramente ilustrativas.
- Precios no incluyen gastos notariales ni impuestos aplicables.
- Maturana Consultoría Inmobiliaria es solamente intermediario comercial, por lo que no es responsable de los resultados de negociaciones y acuerdos finales entre comprador y vendedor.
- Contamos con aviso de privacidad, si desea consultarlo aquí el acceso : *

El pago podrá realizarse con recursos propios o con crédito hipotecario de cualquier institución, pública o privada, sujeto a la negociación que lleguen las partes de la compraventa y a las políticas de la institución correspondiente.

En las operaciones de crédito el costo total se determinará en función de los montos variables de conceptos de crédito y gastos notariales.


NOM-247

Amenidades

  • Balcón
  • Gimnasio
  • Roof garden
  • Seguridad 12 horas
  • Salón de usos múltiples
LOTO

LOTO

EB-UL7284
Imprimir propiedad

Ubicación

Santa Maria Nonoalco, Benito Juárez, Ciudad de México

Propiedades destacadas