TELÉFONO OFICINA:

33-33-48-08-42




TELÉFONO OFICINA:

33-33-48-08-42


Departamento en Carmela Condos - Aldea Zamá, Tulum

Tulum Centro, Tulum, Quintana Roo

  • $6,225,000 MXN En Venta
  • $6,225,000 MXN En Venta
  • 2 Recámaras
  • 2 Baños
  • 104.33 m² de construcción
Ver Tour Virtual

Detalles

  • Tipo: Departamento
  • ID: EB-UW0451
  • Recámaras: 2 recámaras
  • Baños: 2
  • Piso: 1

Descripción

Carmela es un desarrollo exclusivo de 24 departamentos, diseñado para integrarse de forma natural al entorno selvático de Tulum, combinando arquitectura orgánica, confort y privacidad.

Ubicado en la entrada de Aldea Zamá, Carmela ofrece una ubicación privilegiada con acceso inmediato a la zona hotelera, comercios y servicios, dentro de una comunidad cerrada y segura.

Entrega inmediata
Métodos de pago:
• 30% enganche + 70% a la escritura
• 10% enganche + 90% a la escritura

Características Generales del Desarrollo
• 24 departamentos residenciales
• Arquitectura con materiales naturales y acabados orgánicos
• Comunidad cerrada con acceso controlado
• Dos elevadores
• Solariums privados en niveles superiores
• Jardines y jacuzzis privados en planta baja
• Bodegas y estacionamiento asignado
• Diseño inspirado en la esencia de Tulum

Amenidades
• Seguridad 24/7
• Lobby
• Piscina central rodeada de vegetación
• Terraza
• Bicicletas para residentes
• Elevadores
• Andadores verdes y áreas de descanso

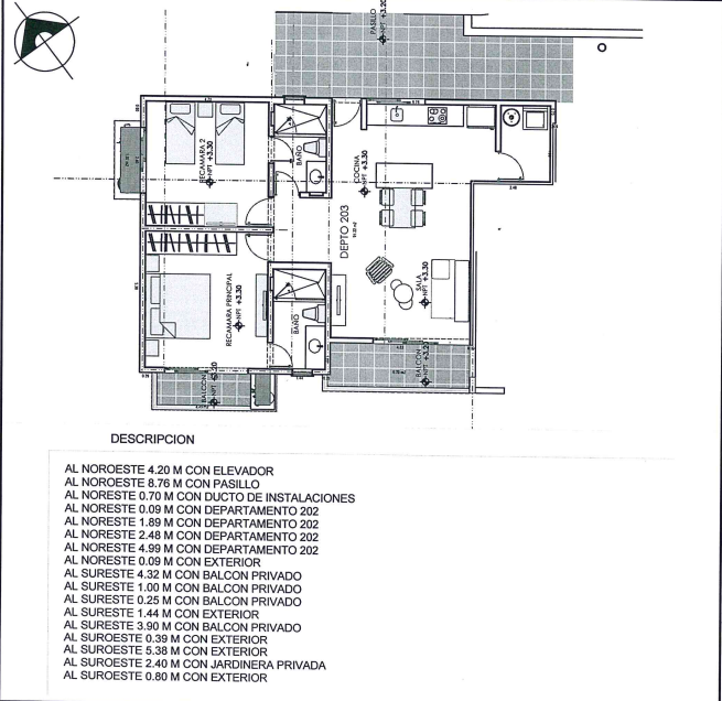
Condo 203 – Primer Nivel (1N)
• Superficie total: 104.33 m²
• Recámaras: 2
• Nivel: Primer nivel
• Precio total: $6,225,000.00 MXN
• Precio por m²:$59,670.00 MXN

Modelo Disponible
• Ubicado en primer nivel
• Amplia distribución y excelente iluminación
• Terraza privada con vista interior a vegetación
• Ideal para renta vacacional o segunda residencia en Tulum

Avisos Importantes:
• Las imágenes son exclusivamente ilustrativas y las especificaciones están sujetas a modificaciones.
• El mobiliario, elementos decorativos y accesorios no están incluidos en el precio salvo que se estipule por escrito.
• El precio publicado no incluye gastos notariales, impuestos, avalúos ni cuotas de mantenimiento.
• El precio total dependerá de los montos variables de conceptos notariales y de crédito, conforme a la NOM-247-SE-2021.

Amenidades

  • Estacionamiento techado
  • Facilidad para estacionarse
  • Terraza
  • Accesibilidad para adultos mayores
  • Accesibilidad para personas con discapacidad
  • Cocina
  • Alberca
LOTO

LOTO

EB-UW0451
Imprimir propiedad

Ubicación

Tulum Centro, Tulum, Quintana Roo

Propiedades destacadas