TELÉFONO OFICINA:

33-33-48-08-42




TELÉFONO OFICINA:

33-33-48-08-42


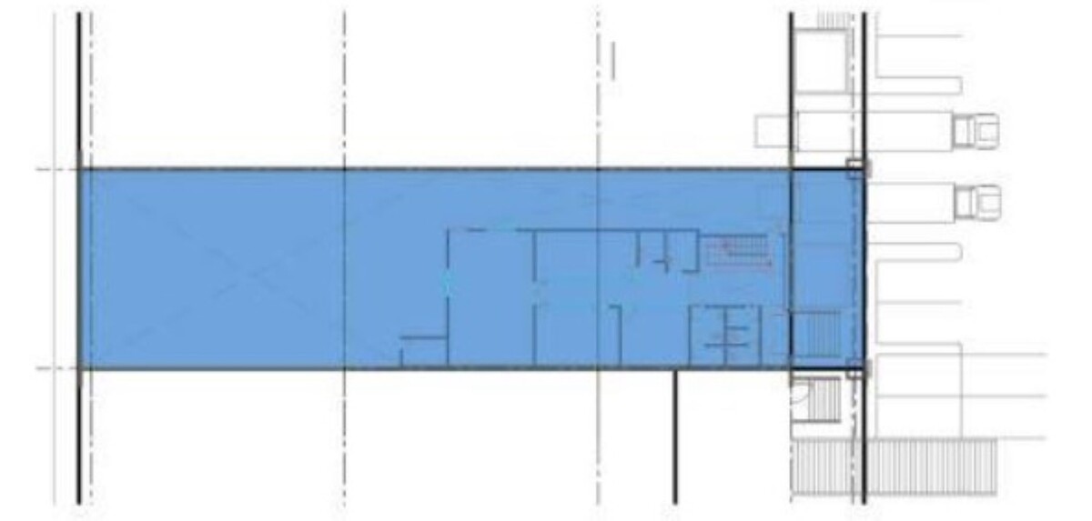
BODEGA COMERCIAL EN RENTA, CARR A LAGO DE GUADALUPE, TLALNEPANTLA EDO DE MEX

Barrientos, Tlalnepantla de Baz, Estado de México

  • US$ 9 por m² En Renta
  • US$ 9 por m² En Renta
  • 786 m² de construcción
  • 4 Estacionamientos
Ver Tour Virtual

Detalles

  • Tipo: Bodega comercial
  • ID: EB-UV8118
  • Clave interna: 13913
  • Mantenimiento: SI

Descripción

Nave Industrial

Carretera Lago de Guadalupe LotE

San Pedro Barrientos | Tlalnepantla de Baz | Edo. de México

Renta
USD 9

Información general


Tipo de Techo: Tiltup

Condición: Muy bueno

Tipo de iluminación : T-5 Lamps / Lampara T-5 Ahorradoras de energía

Superficies y medidas

Descripción

BODEGA COMERCIAL en parque de 786 m2
altura de 9.50 m con acceso a la nave

El precio es de 9USDx m2




Disponibilidad inmediata ¡ Previa Cita !

Mostrar menos
Servicios

Agua Potable

Energia trifasica

Amenidades

  • Barrio cerrado
  • Cisterna
  • Estacionamiento
  • Facilidad para estacionarse
  • Circuito cerrado
  • Fraccionamiento privado
  • Seguridad 24 horas
LOTO

LOTO

EB-UV8118
Imprimir propiedad

Ubicación

Barrientos, Tlalnepantla de Baz, Estado de México

Propiedades destacadas