LOTO

  • 3333480842
  • loto.easybroker.com

CASA VENTA MÉRIDA, UNA PLANTA, 509M2, ALBERCA, 3 HABITS. MURUM DZITYÁ, DIC 2025

Dzityá, Mérida

$6,995,000 For Sale

  • 3 Bedrooms
  • 5 Bathrooms
  • 3 Parking spaces
  • 345 m² total space
  • 509 m² Lot Size
  • 46.77 m Lot Length
  • 10.93 m Lot Width
  • Under Construction Age
  • NO APLICA Expenses
  • EB-SY4883 ID
Description

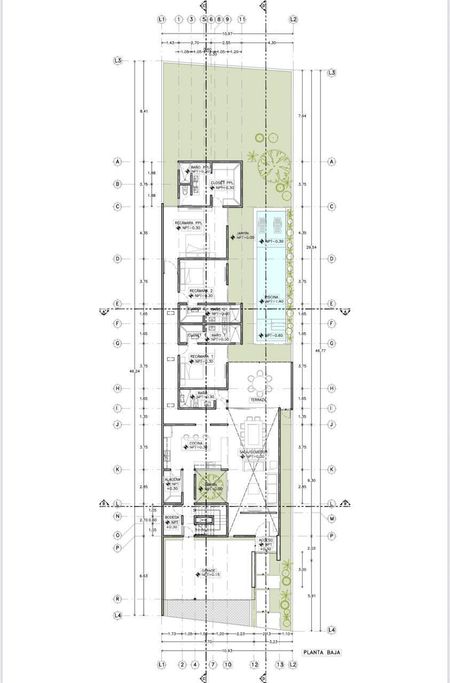
En venta una moderna casa de una planta con los servicios en el segundo nivel ubicada en una de las zonas mas deseadas para vivir al norte de Mérida, Dzityá.

Su amplitud enamora a cualquiera, tiene mas de 509m2 de terreno y 330m2 de construcción.

Tiene cercanía con escuelas ( el Colegio Montreal a menos de 300m de distancia ) Plazas Comerciales, Bancos, Servicio de transporte publico ( a 60 metros ) y muy buena conexión a las zonas mas importantes incluyendo las costas yucatecas.

Nuestra Casa

Cochera techada para 3 autos
Jardín frontal
Fachada imponente con gran carácter
Vestíbulo que ofrece gran vista
Sala / Comedor con techos a gran altura
Cocina con isla / gran alacena / bodega
Baño de visitas con servicio para la alberca
Terraza techada
Alberca de 14x3 con acabado chukum
Gran jardín trasero
Recámara 1 con walk in closet y baño propio
Recámara 2 con walk in closet y baño propio
Recámara principal con gran walk in closet y baño propio

Planta Alta
Cuarto de servicio con baño
Centro de lavado
Área de tendido

Acabados:
Pisos de Mármol o cerámico de gran formato
Granito en cocina
Grifería de gran calidad
Cocina con gavetas inferiores
Aluminio linea 3 color negro

EQUIPAMIENTO INCLUIDO:
Cocina integral con isla, gavetas inferiores y superiores
Parrilla campana horno
Climas en toda la casa
Fijos de vidrio templado en baños
Césped
Closets de madera en recámaras 1,2 y 3
Espejos en baños.

Forma de pago:
Apartado: $30,000 vigente 8 días
Enganche: 30% negociables
Acepta créditos bancarios y / o recursos propios

Disponible: 1 unidad
Fecha de entrega: Diciembre 2025
Única disponible

Agenda con nuestros asesores para conocer ubicación, avance de obra y detalles del proyecto.
Imagines ilustrativas
Sujeto a disponibilidad y cambio de precio sin previo aviso.

Amenities
  • School
  • Hospitales near
  • Parques & Areas verdes
  • Beaches ( less than 45" )
  • Shops
  • Restaurants
  • Transporte Publico
  • Cistern
  • Covered parking
  • Street parking
  • Garden
  • Terrace
  • Accessibility for elderly
  • Handicap accessible
  • Storge Unit
  • Laundry Room
  • areas for investing
  • Hydropneumatic
  • Internet (EZ-Hook up)
  • Single story
  • Pool
  • Pets allowed
  • Golf course, less than 30"
  • Tennis court less than 20"
  • Gym

LOTO

  • 3333480842
  • loto.easybroker.com

LOTO

  • 3333480842
  • loto.easybroker.com