CASA EN CONDOMINIO EN CHOLUL
Cholul, Mérida
 
      Cholul, Mérida
Casa en privada de solo 95 lotes residenciales con entorno lleno de vegetación y con amenidades.
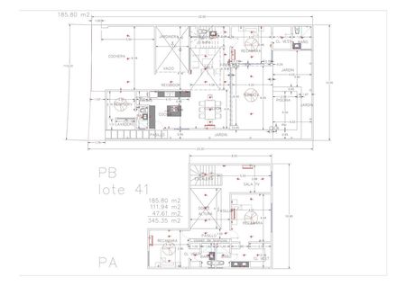
PLANTA BAJA:
-Cochera Techada para dos autos,
-Recibidor,
-Jardín interior,
-Sala a doble altura,
-Comedor,
-Cocina con Isla central,
-Despensa,
-Recámara con walk in closet t y baño privado,
-Medio baño de visitas,
-Terraza techada,
-Cuarto de servicio con baño completo,
-Área de lavado,
-Alberca de 2.20x4.40.
PLANTA ALTA
-Recámara principal con clóset vestidor y baño privado con doble lavabo,
-Recámara secundaria con walk in clóset y baño privado,
-Family room,
-Espacio para closet de blancos.
ACABADOS:
-Piso de mármol travertino en toda la casa,
-Meseta de granito Blanco Dallas, Verde Ubatuba o similar en cocina,
-Mesetas de mármol travertino en baños,
-Cancelería negra,
-Carpintería de MDF en cocina y clósets,
-Piscina acabado tipo Chukum.
INCLUYE:
-Parrilla de gas y campana,
-Fijos de Cristal templado en baños.
AMENIDADES DE LA PRIVADA:
-Yoga Zone,
-Gimnasio al aire libre,
-Juegos infantiles,
-Canal de nado y alberca infantil,
-Pabellón cultural,
-Parque para mascotas,
-Cancha de fútbol,
-Pabellón social.
SERVICIOS:
-Barda Perimetral con electrificación.
-Caseta de Vigilancia 24/7.
-Concreto Hidráulico en toda la privada.
-Servicios de Luz, Agua, Voz y Datos subterráneos.
-Cámara de Seguridad.
FORMAS DE PAGO ACEPTADA:
-Recurso propio y créditos bancarios,
-Apartado: $50,000 (Reembolsables en 7días)
-Enganche: 30%.
ENTREGA: FEBRERO 2026
Si te gustó esta propiedad, contáctanos y nosotros te asesoramos.
El precio total se determinará en función de los montos variables de conceptos de crédito y notariales que deben ser consultados con los promotores de conformidad con lo establecido en la NOM-247-SE-2021
 
       
                 
                 
                 
                 
                 
                 
       
                 
                 
                 
                 
                